
Het kan dus toch, toilet, bad, douche en wastafel (Davonta)

(c) Anne-Marie - Davonta 2 - Het toilet beneden

(c) Anne-Marie - Davonta 2 -
Standaard toilet voor de badkamer

(c) Anne-Marie - Davonta 2 - standaard hoek opgestelde wasbak

(c) Anne-Marie - Davonta 2 - Nog een standaard tegel

(c) Anne-Marie - Davonta 2 - Nog meer standaard tegels

(c) Anne-Marie Davonta 2 - Tegels (standaard) 1

'
(c) Anne-Marie - Davonta 2 -
Dit kraantje komt in het toilet (Davonta)

(C) Anne-Marie - Davonta 2 -
Als je niks doet wordt dit de douche

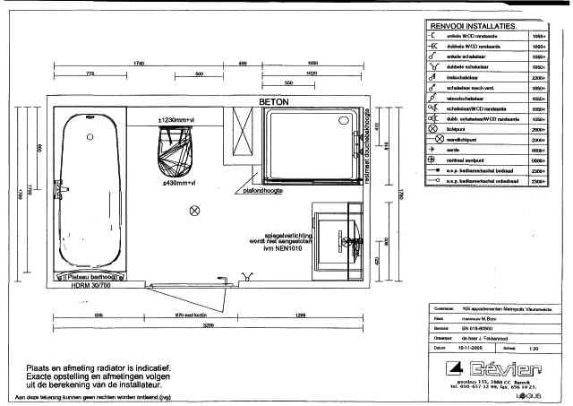
Impressie van een badkamer voor de Camyra A7 (ook geschikt voor A6).

Plattegrond van een badkamer voor de Camyra A7 (ook geschikt
voor
Camyra A6).

Badkamer uitgebouwd op de gang. Dit is overigens een idee voor een
Davonta, en nog niet
overlegd met de bouwer.
div>